Report bug
Home
>
Piemonte
>
AT
>
Asti
>
Corso Alba, Variglie, Vaglierano
>
Vaglierano
5 / 7
←
→
1 / 8
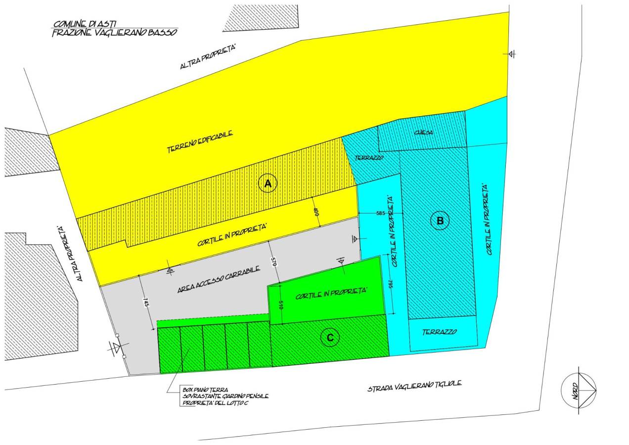
Casa indipendente Frazione Vaglierano Basso, 22, Vaglierano, Asti
📐
323 m²
🚪
5+ locali
🚿
1 bagni
immobiliare.it ↗
▼ Mostra mappa
Alt ←
←
Precedente
Successivo
→
Alt →
Quanto costa questo immobile?
€
.000
Spazio
Indovina
↵
Sessione: 0 stime
Sessione: 0 stime