Report bug
Home
>
Piemonte
>
AT
>
Asti
>
Corso Alba, Variglie, Vaglierano
>
Vaglierano
6 / 7
←
→
1 / 20
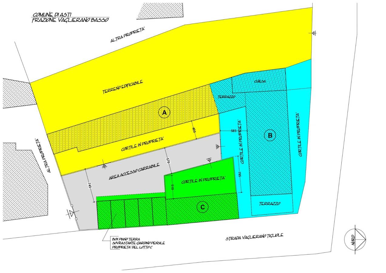
Palazzo - Edificio Frazione Vaglierano Basso, 22, Vaglierano, Asti
📐
1130 m²
🚪
5+ locali
🚿
3+ bagni
immobiliare.it ↗
▼ Mostra mappa
Alt ←
←
Precedente
Successivo
→
Alt →
Quanto costa questo immobile?
€
.000
Spazio
Indovina
↵
Sessione: 0 stime
Sessione: 0 stime