Report bug
Home
>
Umbria
>
PG
>
Panicale
>
Centro
85 / 191
←
→
1 / 21
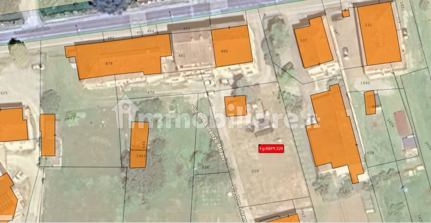
Appartamento Via della Resistenza, 30, Centro, Panicale
📐
122 m²
🚪
4 locali
🚿
1 bagni
🏢
Piano 2
immobiliare.it ↗
▼ Mostra mappa
Alt ←
←
Precedente
Successivo
→
Alt →
Quanto costa questo immobile?
€
.000
Spazio
Indovina
↵
Sessione: 0 stime
Sessione: 0 stime