Report bug
Home
>
Trentino-Alto Adige
>
TN
>
Trento
>
Trento Nord
>
Meano - Gazzadina
7 / 31
←
→
1 / 8
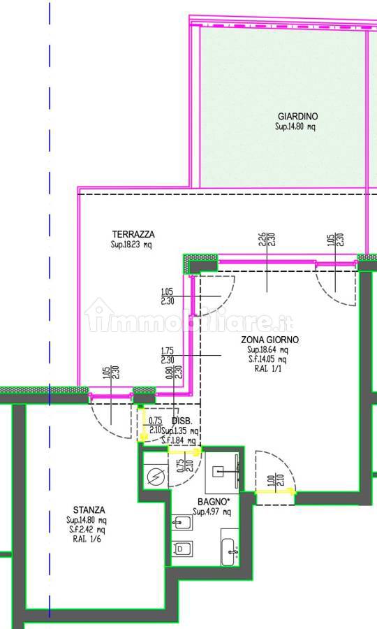
Appartamento Via delle Tre croci, Meano - Gazzadina, Trento
📐
73 m²
🚪
2 locali
🚿
1 bagni
🏢
Piano 1
🛗
Ascensore
immobiliare.it ↗
▼ Mostra mappa
Alt ←
←
Precedente
Successivo
→
Alt →
Quanto costa questo immobile?
€
.000
Spazio
Indovina
↵
Sessione: 0 stime
Sessione: 0 stime