Report bug
Home
>
Trentino-Alto Adige
>
TN
>
Trento
>
Trento Nord
>
Meano - Gazzadina
29 / 31
1 / 1
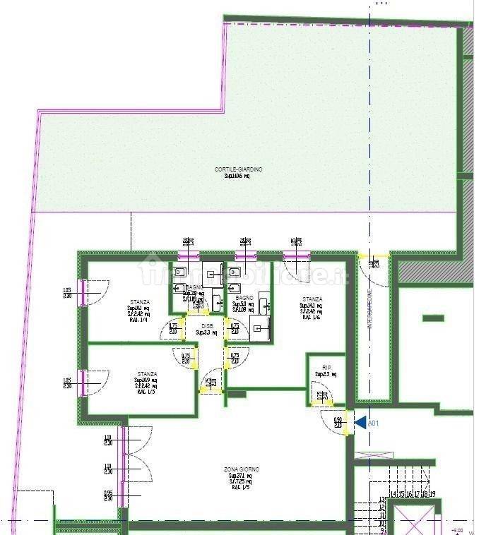
Appartamento in Meano - Gazzadina, Trento
📐
105 m²
🚪
4 locali
🚿
2 bagni
🛗
Ascensore
immobiliare.it ↗
▼ Mostra mappa
Alt ←
←
Precedente
Successivo
→
Alt →
Quanto costa questo immobile?
€
.000
Spazio
Indovina
↵
Sessione: 0 stime
Sessione: 0 stime