Report bug
Home
>
Sicilia
>
TP
>
Alcamo
>
Contrada Sant'Anna
9 / 36
←
→
1 / 58
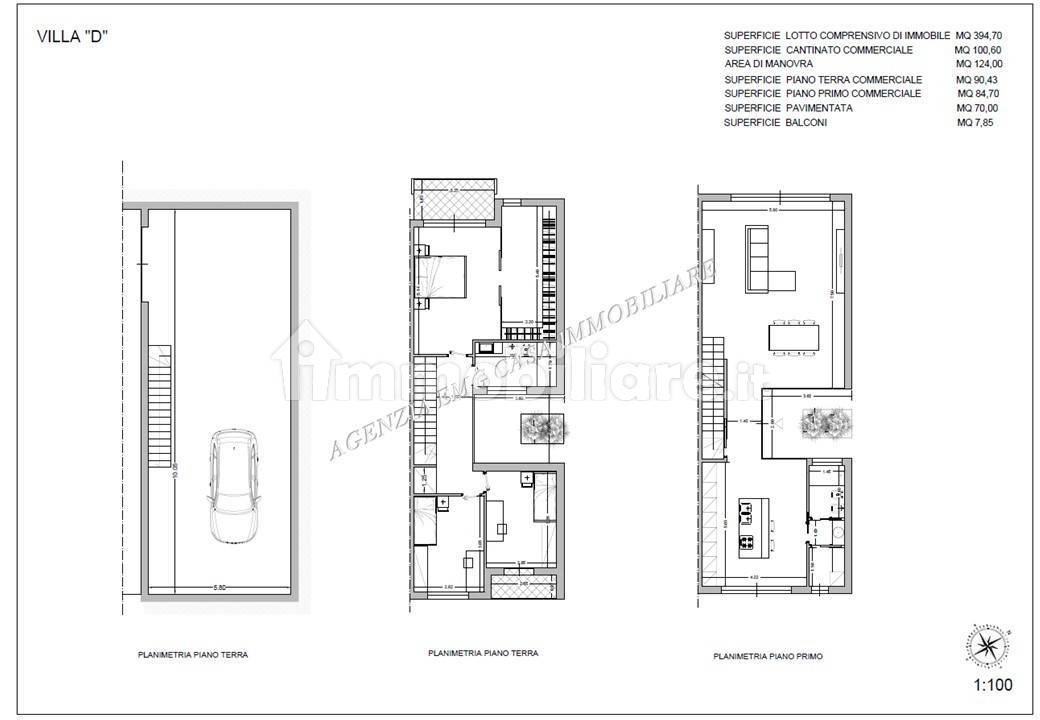
Villetta a schiera Via John Fitzgerald Kennedy, 256, Contrada Sant'Anna, Alcamo
📐
203 m²
🚪
3 locali
🚿
2 bagni
immobiliare.it ↗
▼ Mostra mappa
Alt ←
←
Precedente
Successivo
→
Alt →
Quanto costa questo immobile?
€
.000
Spazio
Indovina
↵
Sessione: 0 stime
Sessione: 0 stime