Report bug
Home
>
Sicilia
>
TP
>
Alcamo
>
Centro
17 / 407
←
→
1 / 36
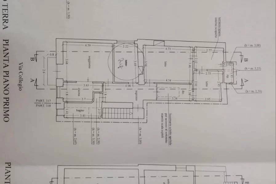
Appartamento Via Collegio, 16, Centro, Alcamo
📐
101 m²
🚪
4 locali
🚿
1 bagni
🏢
Piano 1
immobiliare.it ↗
▼ Mostra mappa
Alt ←
←
Precedente
Successivo
→
Alt →
Quanto costa questo immobile?
€
.000
Spazio
Indovina
↵
Sessione: 0 stime
Sessione: 0 stime