Report bug
Home
>
Sardegna
>
SS
>
Sassari
>
La Corte, Palmadula
>
Palmadula - Argentiera
3 / 15
←
→
1 / 14
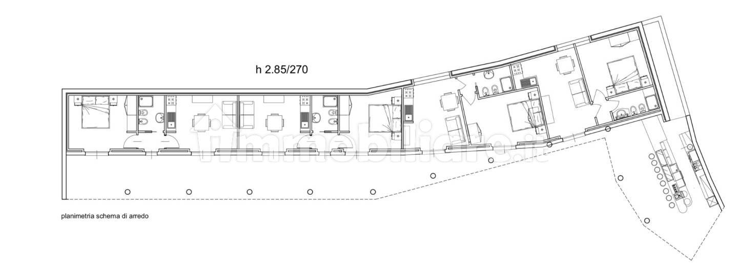
Villa Strada Vicinale Lampianu, 7, Palmadula - Argentiera, Sassari
📐
250 m²
🚪
5+ locali
🚿
3+ bagni
immobiliare.it ↗
▼ Mostra mappa
Alt ←
←
Precedente
Successivo
→
Alt →
Quanto costa questo immobile?
€
.000
Spazio
Indovina
↵
Sessione: 0 stime
Sessione: 0 stime