Report bug
Home
>
Sardegna
>
SS
>
Alghero
>
Sant'Agostino
97 / 111
1 / 1
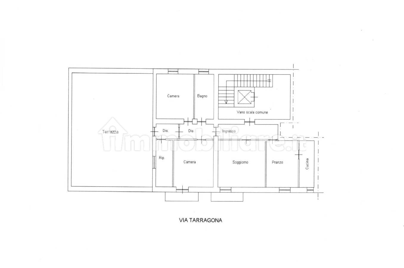
Appartamento Via Antonio Marongiu, 45, Sant'Agostino, Alghero
📐
115 m²
🚪
4 locali
🚿
1 bagni
🏢
Piano 3
🛗
Ascensore
immobiliare.it ↗
▼ Mostra mappa
Alt ←
←
Precedente
Successivo
→
Alt →
Quanto costa questo immobile?
€
.000
Spazio
Indovina
↵
Sessione: 0 stime
Sessione: 0 stime