Report bug
Home
>
Sardegna
>
SS
>
Aglientu
>
Centro
5 / 111
←
→
1 / 46
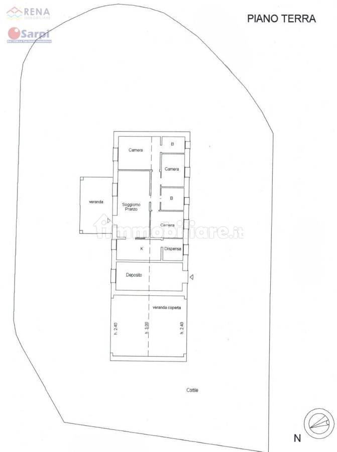
Villa SP5, Centro, Aglientu
📐
305 m²
🚪
5+ locali
🚿
2 bagni
immobiliare.it ↗
▼ Mostra mappa
Alt ←
←
Precedente
Successivo
→
Alt →
Quanto costa questo immobile?
€
.000
Spazio
Indovina
↵
Sessione: 0 stime
Sessione: 0 stime