Report bug
Home
>
Puglia
>
FG
>
Foggia
>
Sant'Anna, Sant'Eligio, Candelaro, Via Lucera
>
Sant'Anna - Sant'Eligio
70 / 88
←
→
1 / 20
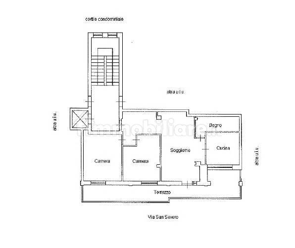
Appartamento Via San Severo, 46, Sant'Anna - Sant'Eligio, Foggia
📐
99 m²
🚪
3 locali
🚿
1 bagni
🏢
Piano 8
🛗
Ascensore
immobiliare.it ↗
▼ Mostra mappa
Alt ←
←
Precedente
Successivo
→
Alt →
Quanto costa questo immobile?
€
.000
Spazio
Indovina
↵
Sessione: 0 stime
Sessione: 0 stime