Report bug
Home
>
Piemonte
>
CN
>
Mondovì
>
Piazza
42 / 65
←
→
1 / 25
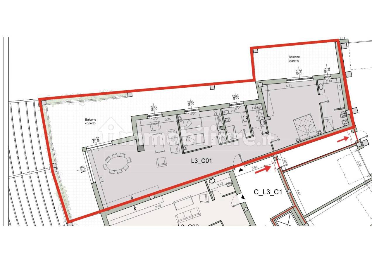
Appartamento Via Porta di Vasco, Piazza, Mondovi
📐
186 m²
🚪
3 locali
🚿
2 bagni
🏢
Piano 3
🛗
Ascensore
immobiliare.it ↗
▼ Mostra mappa
Alt ←
←
Precedente
Successivo
→
Alt →
Quanto costa questo immobile?
€
.000
Spazio
Indovina
↵
Sessione: 0 stime
Sessione: 0 stime