Report bug
Home
>
Piemonte
>
CN
>
Mondovì
>
Breo
124 / 129
1 / 1
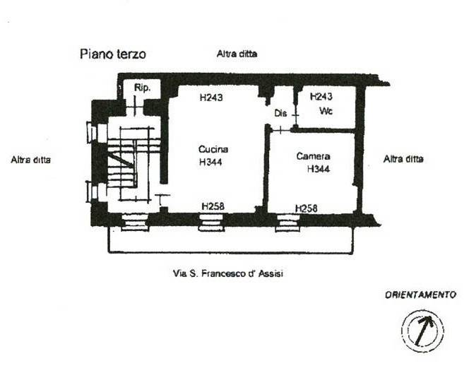
Appartamento in Breo, Mondovi
📐
45 m²
🚪
2 locali
🚿
1 bagni
🏢
Piano 3
immobiliare.it ↗
▼ Mostra mappa
Alt ←
←
Precedente
Successivo
→
Alt →
Quanto costa questo immobile?
€
.000
Spazio
Indovina
↵
Sessione: 0 stime
Sessione: 0 stime