Report bug
Home
>
Molise
>
CB
>
Termoli
>
Centro
96 / 436
←
→
1 / 42
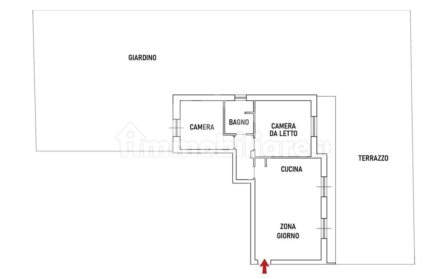
Appartamento Via Pisa, Centro, Termoli
📐
83 m²
🚪
3 locali
🚿
1 bagni
🛗
Ascensore
immobiliare.it ↗
▼ Mostra mappa
Alt ←
←
Precedente
Successivo
→
Alt →
Quanto costa questo immobile?
€
.000
Spazio
Indovina
↵
Sessione: 0 stime
Sessione: 0 stime