Report bug
Home
>
Marche
>
PU
>
Pesaro
>
Montegranaro, Loreto, Muraglia
90 / 169
←
→
1 / 4
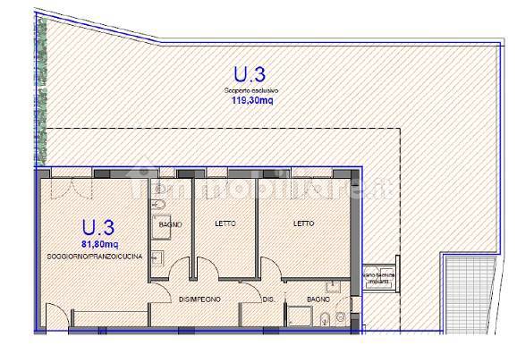
Appartamento Via Adeodato Ugolini, Montegranaro - Loreto, Pesaro
📐
94 m²
🚪
3 locali
🚿
2 bagni
🛗
Ascensore
immobiliare.it ↗
▼ Mostra mappa
Alt ←
←
Precedente
Successivo
→
Alt →
Quanto costa questo immobile?
€
.000
Spazio
Indovina
↵
Sessione: 0 stime
Sessione: 0 stime