Report bug
Home
>
Marche
>
PU
>
Pesaro
>
Mare, Porto, Baia Flaminia
44 / 162
←
→
1 / 24
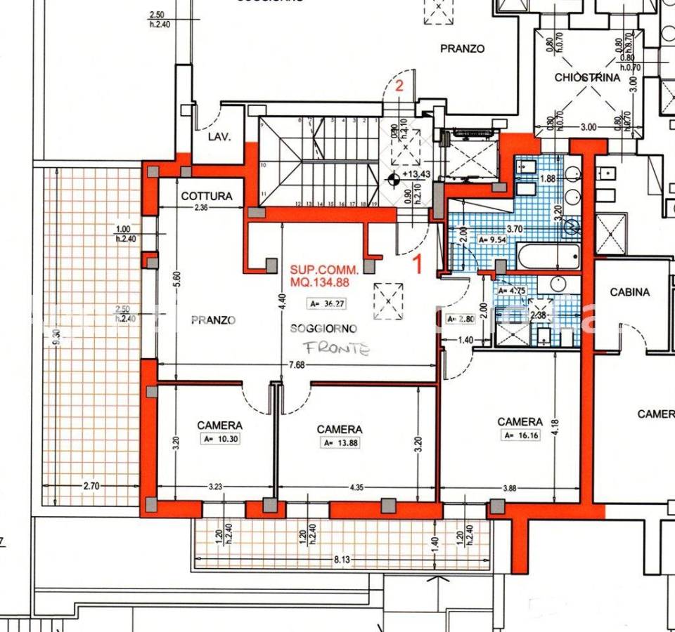
Appartamento Via Romagnosi, Mare, Pesaro
📐
90 m²
🚪
3 locali
🚿
2 bagni
🏢
Piano 2
🛗
Ascensore
immobiliare.it ↗
▼ Mostra mappa
Alt ←
←
Precedente
Successivo
→
Alt →
Quanto costa questo immobile?
€
.000
Spazio
Indovina
↵
Sessione: 0 stime
Sessione: 0 stime