Report bug
Home
>
Marche
>
PU
>
Pesaro
>
Colle Ardizio, Ledimar, Baratoff, Trebbiantico
>
Ledimar - Baratoff
2 / 12
←
→
1 / 39
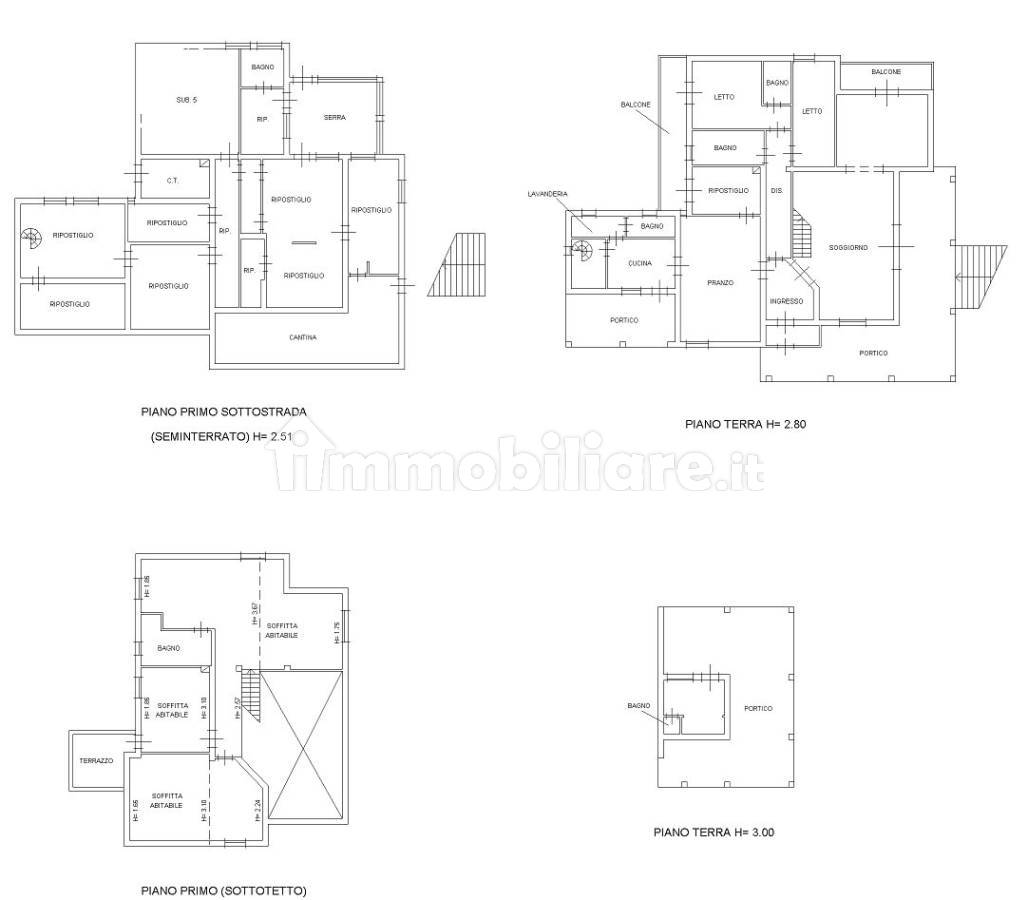
Villa Strada di San Nicola, Ledimar - Baratoff, Pesaro
📐
483 m²
🚪
5+ locali
🚿
3+ bagni
immobiliare.it ↗
▼ Mostra mappa
Alt ←
←
Precedente
Successivo
→
Alt →
Quanto costa questo immobile?
€
.000
Spazio
Indovina
↵
Sessione: 0 stime
Sessione: 0 stime