Report bug
Home
>
Marche
>
PU
>
Fano
>
Gimarra, San Biagio, Roncosambaccio
>
Gimarra
29 / 33
←
→
1 / 11
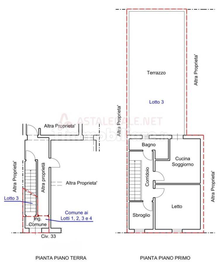
Appartamento in Gimarra, Fano
📐
88 m²
🚪
3 locali
🚿
1 bagni
🏢
Piano 1
immobiliare.it ↗
▼ Mostra mappa
Alt ←
←
Precedente
Successivo
→
Alt →
Quanto costa questo immobile?
€
.000
Spazio
Indovina
↵
Sessione: 0 stime
Sessione: 0 stime