Report bug
Home
>
Lombardia
>
MI
>
Milano
>
Arco della Pace, Arena, Pagano
>
Vincenzo Monti
7 / 81
←
→
1 / 4
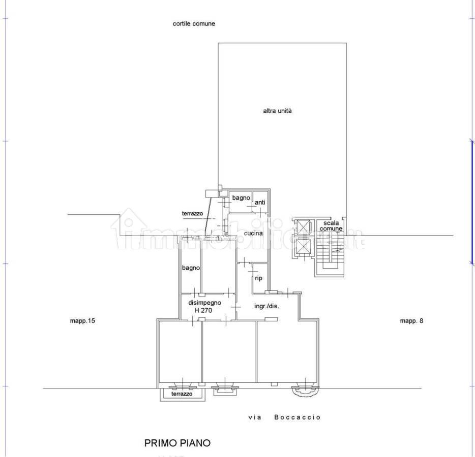
Appartamento Via Giovanni Boccaccio, Vincenzo Monti, Milano
📐
160 m²
🚪
5+ locali
immobiliare.it ↗
▼ Mostra mappa
Alt ←
←
Precedente
Successivo
→
Alt →
Quanto costa questo immobile?
€
.000
Spazio
Indovina
↵
Sessione: 0 stime
Sessione: 0 stime