Report bug
Home
>
Lombardia
>
MI
>
Milano
>
Solari, Washington
>
Vercelli - Wagner
104 / 112
←
→
1 / 11
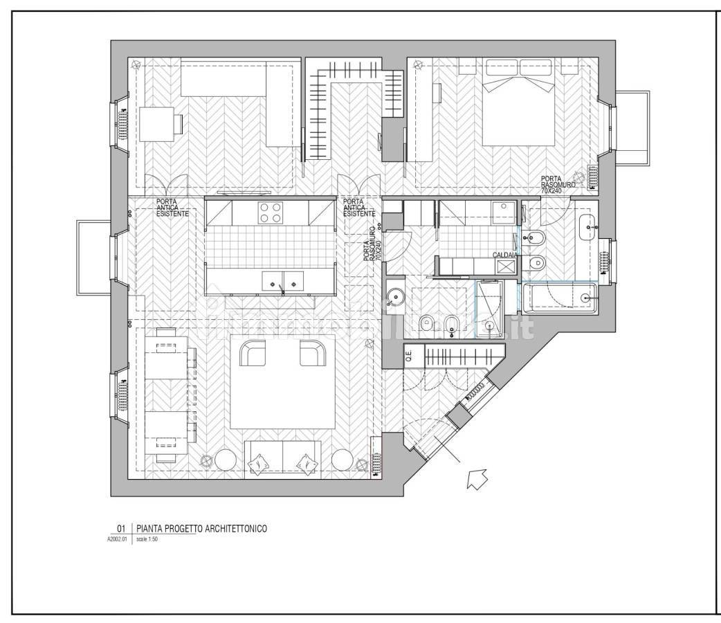
Appartamento Piazza Piemonte, Vercelli - Wagner, Milano
📐
120 m²
🚪
4 locali
🚿
2 bagni
🏢
Piano 2
🛗
Ascensore
immobiliare.it ↗
▼ Mostra mappa
Alt ←
←
Precedente
Successivo
→
Alt →
Quanto costa questo immobile?
€
.000
Spazio
Indovina
↵
Sessione: 0 stime
Sessione: 0 stime