Report bug
Home
>
Lombardia
>
MI
>
Milano
>
Porta Romana, Cadore, Montenero
>
Porta Romana - Medaglie d'Oro
152 / 231
←
→
1 / 21
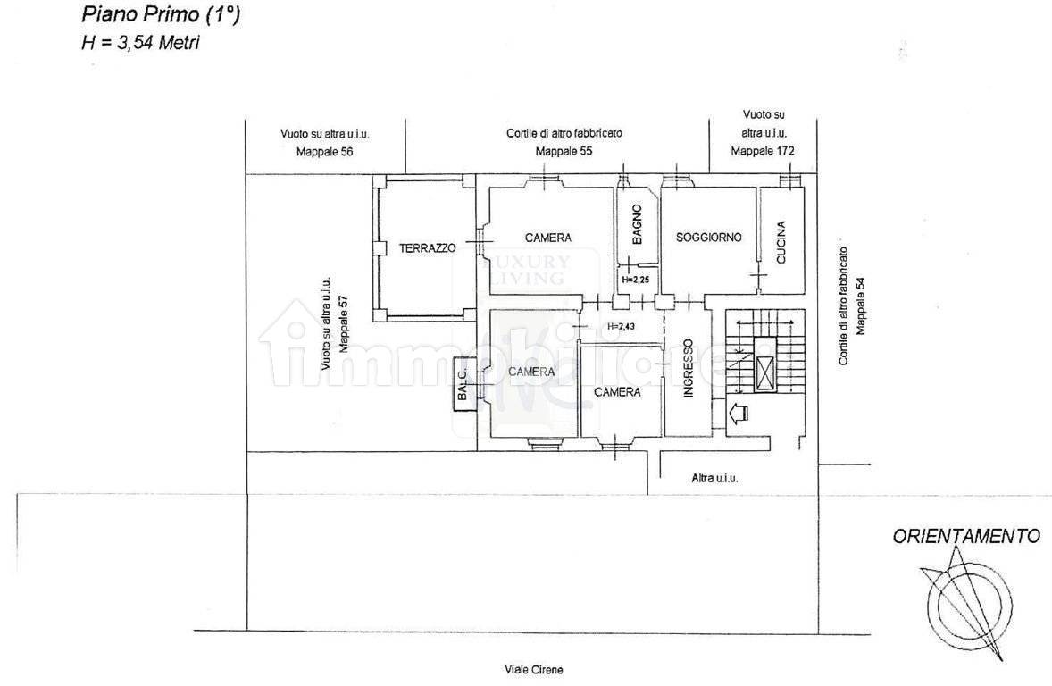
Appartamento Viale Cirene, Porta Romana - Medaglie d'Oro, Milano
📐
118 m²
🚪
4 locali
🚿
1 bagni
🏢
Piano 1
🛗
Ascensore
immobiliare.it ↗
▼ Mostra mappa
Alt ←
←
Precedente
Successivo
→
Alt →
Quanto costa questo immobile?
€
.000
Spazio
Indovina
↵
Sessione: 0 stime
Sessione: 0 stime