Report bug
Home
>
Lombardia
>
MI
>
Milano
>
Cenisio, Sarpi, Isola
>
Paolo Sarpi
6 / 223
←
→
1 / 16
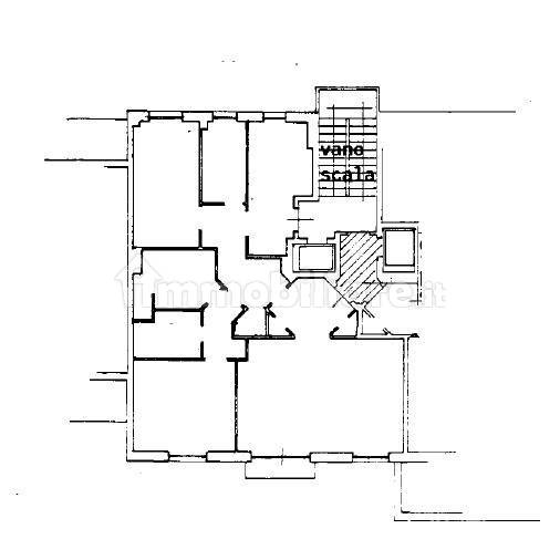
Appartamento Via Francesco Melzi d'Eril, Paolo Sarpi, Milano
📐
120 m²
🚪
3 locali
🚿
2 bagni
🏢
Piano 3
🛗
Ascensore
immobiliare.it ↗
▼ Mostra mappa
Alt ←
←
Precedente
Successivo
→
Alt →
Quanto costa questo immobile?
€
.000
Spazio
Indovina
↵
Sessione: 0 stime
Sessione: 0 stime