Report bug
Home
>
Lombardia
>
MI
>
Milano
>
Fiera, Sempione, City Life, Portello
>
Monte Rosa - Lotto
98 / 215
←
→
1 / 41
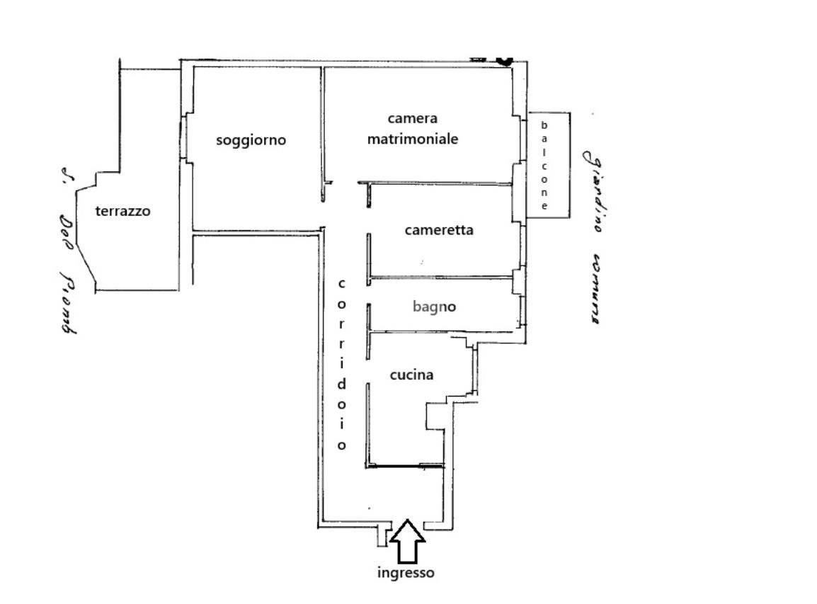
Appartamento Via Antonia Pozzi, 1, Monte Rosa - Lotto, Milano
📐
105 m²
🚪
3 locali
🚿
1 bagni
🏢
Piano 4
🛗
Ascensore
immobiliare.it ↗
▼ Mostra mappa
Alt ←
←
Precedente
Successivo
→
Alt →
Quanto costa questo immobile?
€
.000
Spazio
Indovina
↵
Sessione: 0 stime
Sessione: 0 stime