Report bug
Home
>
Lombardia
>
MI
>
Milano
>
Porta Vittoria, Lodi
>
Martini - Insubria
10 / 154
←
→
1 / 16
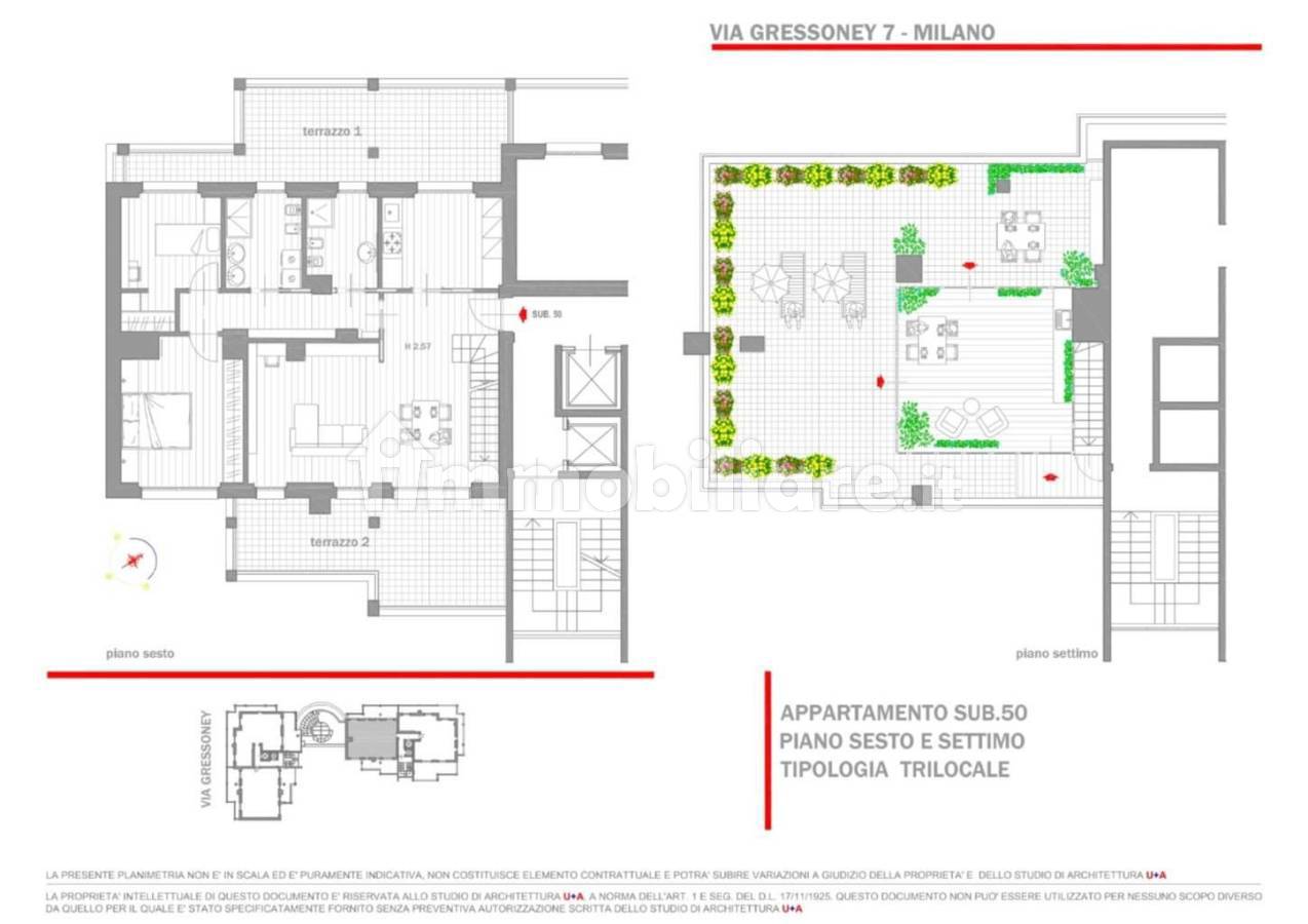
Appartamento Via Gressoney, 7, Martini - Insubria, Milano
📐
171 m²
🚪
4 locali
🚿
2 bagni
🏢
Piano 6
🛗
Ascensore
immobiliare.it ↗
▼ Mostra mappa
Alt ←
←
Precedente
Successivo
→
Alt →
Quanto costa questo immobile?
€
.000
Spazio
Indovina
↵
Sessione: 0 stime
Sessione: 0 stime