Report bug
Home
>
Lombardia
>
MI
>
Milano
>
Bande Nere, Inganni
>
Lorenteggio
78 / 108
←
→
1 / 16
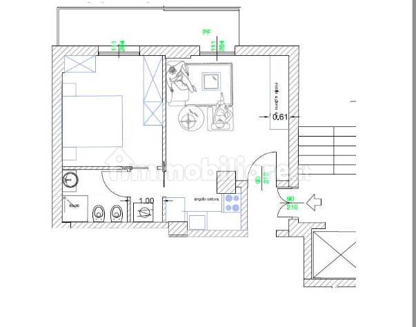
Appartamento Viale San Gimignano, 9, Lorenteggio, Milano
📐
50 m²
🚪
2 locali
🚿
1 bagni
🛗
Ascensore
immobiliare.it ↗
▼ Mostra mappa
Alt ←
←
Precedente
Successivo
→
Alt →
Quanto costa questo immobile?
€
.000
Spazio
Indovina
↵
Sessione: 0 stime
Sessione: 0 stime