Report bug
Home
>
Lombardia
>
MI
>
Milano
>
Abbiategrasso, Chiesa Rossa
>
Gratosoglio
19 / 96
←
→
1 / 21
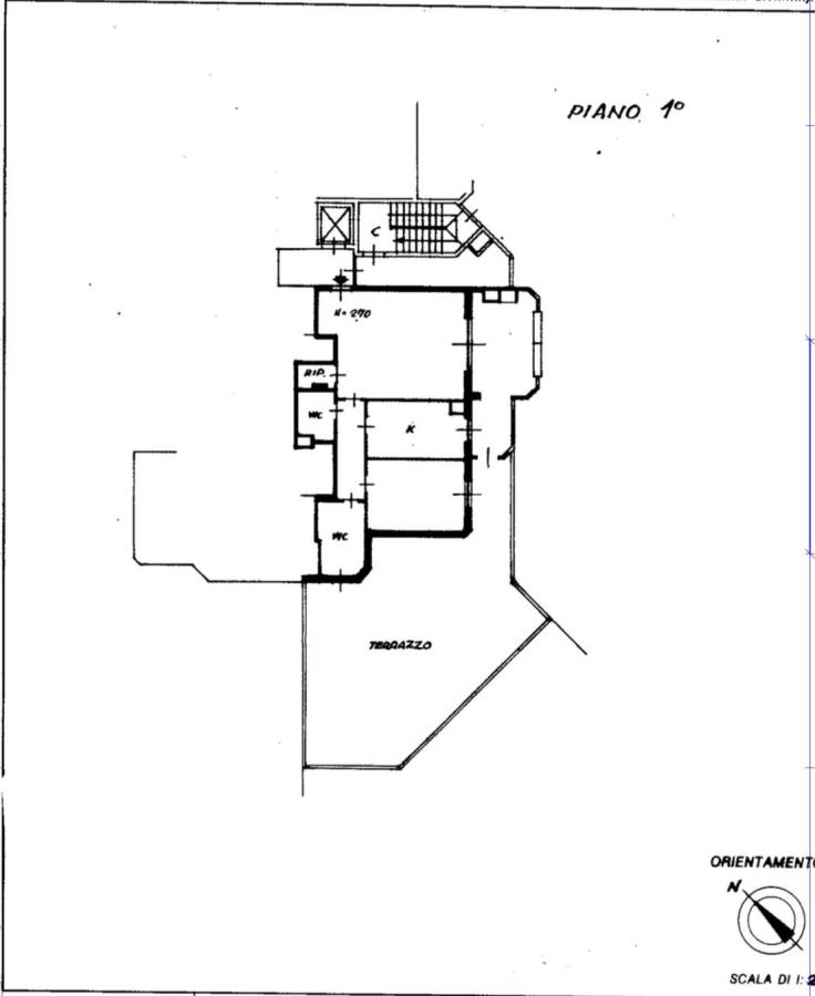
Appartamento Via Ettore Bugatti, 8, Gratosoglio, Milano
📐
110 m²
🚪
3 locali
🚿
2 bagni
🏢
Piano 1
🛗
Ascensore
immobiliare.it ↗
▼ Mostra mappa
Alt ←
←
Precedente
Successivo
→
Alt →
Quanto costa questo immobile?
€
.000
Spazio
Indovina
↵
Sessione: 0 stime
Sessione: 0 stime