Report bug
Home
>
Lombardia
>
MI
>
Milano
>
Città Studi, Susa
>
Casoretto
181 / 210
←
→
1 / 36
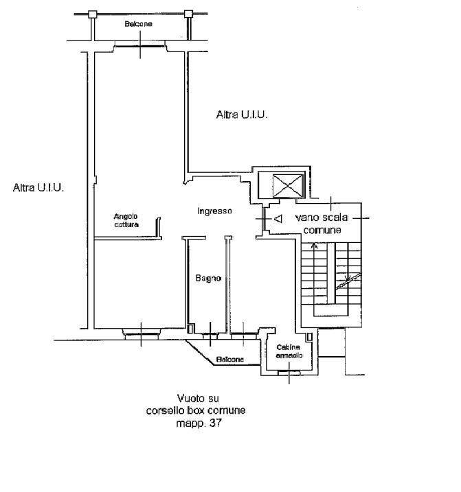
Appartamento VIA CASORETTO, 43, Casoretto, Milano
📐
71 m²
🚪
3 locali
🚿
1 bagni
🏢
Piano 7
🛗
Ascensore
immobiliare.it ↗
▼ Mostra mappa
Alt ←
←
Precedente
Successivo
→
Alt →
Quanto costa questo immobile?
€
.000
Spazio
Indovina
↵
Sessione: 0 stime
Sessione: 0 stime