Report bug
Home
>
Liguria
>
IM
>
Sanremo
>
San Martino, Villetta, La Brezza, Tre Ponti
>
San Martino - Villetta
190 / 224
←
→
1 / 8
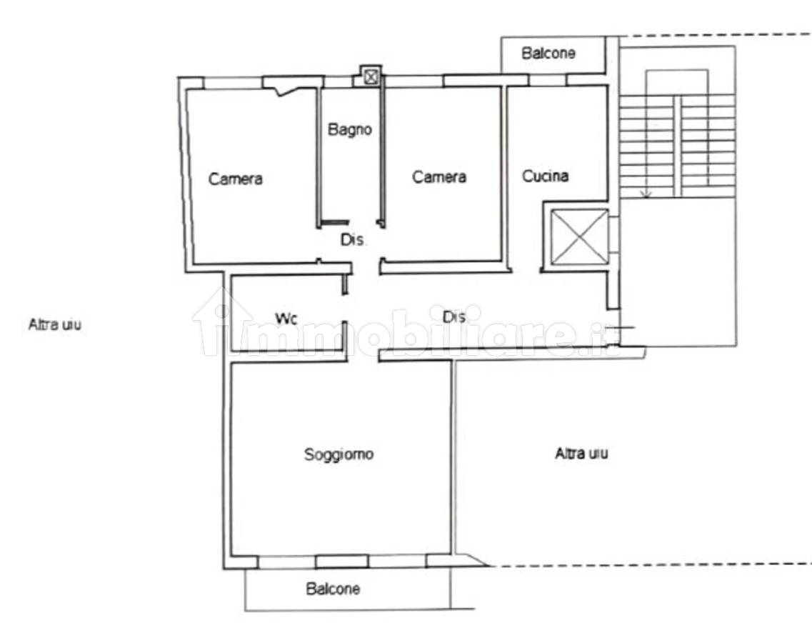
Appartamento Corso Felice Cavallotti, San Martino - Villetta, Sanremo
📐
115 m²
🚪
5+ locali
🚿
2 bagni
🏢
Piano 2
🛗
Ascensore
immobiliare.it ↗
▼ Mostra mappa
Alt ←
←
Precedente
Successivo
→
Alt →
Quanto costa questo immobile?
€
.000
Spazio
Indovina
↵
Sessione: 0 stime
Sessione: 0 stime