Report bug
Home
>
Lazio
>
RM
>
Roma
>
Salario, Trieste
>
Trieste
60 / 280
←
→
1 / 40
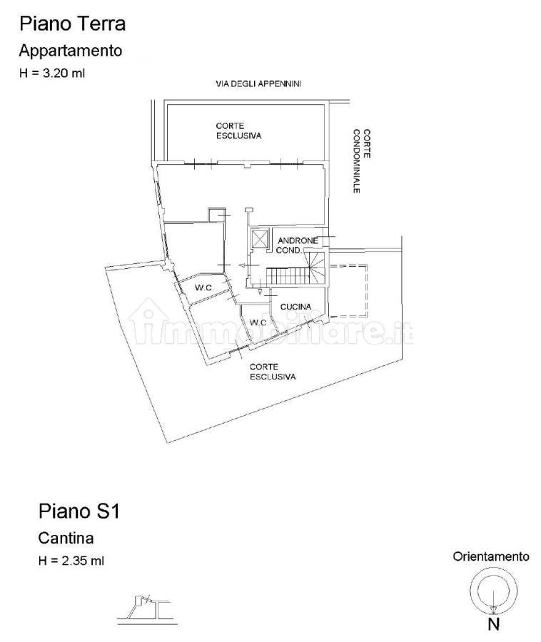
Appartamento Piazza Caprera, Trieste, Roma
📐
133 m²
🚪
3 locali
🚿
2 bagni
🛗
Ascensore
immobiliare.it ↗
▼ Mostra mappa
Alt ←
←
Precedente
Successivo
→
Alt →
Quanto costa questo immobile?
€
.000
Spazio
Indovina
↵
Sessione: 0 stime
Sessione: 0 stime