Report bug
Home
>
Lazio
>
RM
>
Roma
>
Testaccio, Trastevere
>
Trastevere
54 / 233
1 / 1
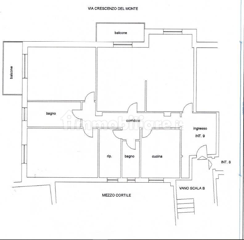
Appartamento Via Portuense, 110, Trastevere, Roma
📐
151 m²
🚪
5+ locali
🚿
2 bagni
🏢
Piano 3
🛗
Ascensore
immobiliare.it ↗
▼ Mostra mappa
Alt ←
←
Precedente
Successivo
→
Alt →
Quanto costa questo immobile?
€
.000
Spazio
Indovina
↵
Sessione: 0 stime
Sessione: 0 stime