Report bug
Home
>
Lazio
>
RM
>
Roma
>
Testaccio, Trastevere
>
Trastevere
43 / 233
←
→
1 / 38
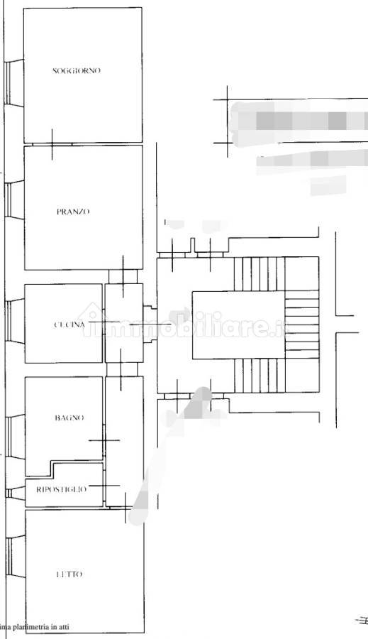
Appartamento Via Luciano Manara, Trastevere, Roma
📐
120 m²
🚪
4 locali
🚿
1 bagni
🏢
Piano 1
🛗
Ascensore
immobiliare.it ↗
▼ Mostra mappa
Alt ←
←
Precedente
Successivo
→
Alt →
Quanto costa questo immobile?
€
.000
Spazio
Indovina
↵
Sessione: 0 stime
Sessione: 0 stime