Report bug
Home
>
Lazio
>
RM
>
Roma
>
Ponte di Nona, Torre Angela
>
Torre Angela
11 / 190
←
→
1 / 16
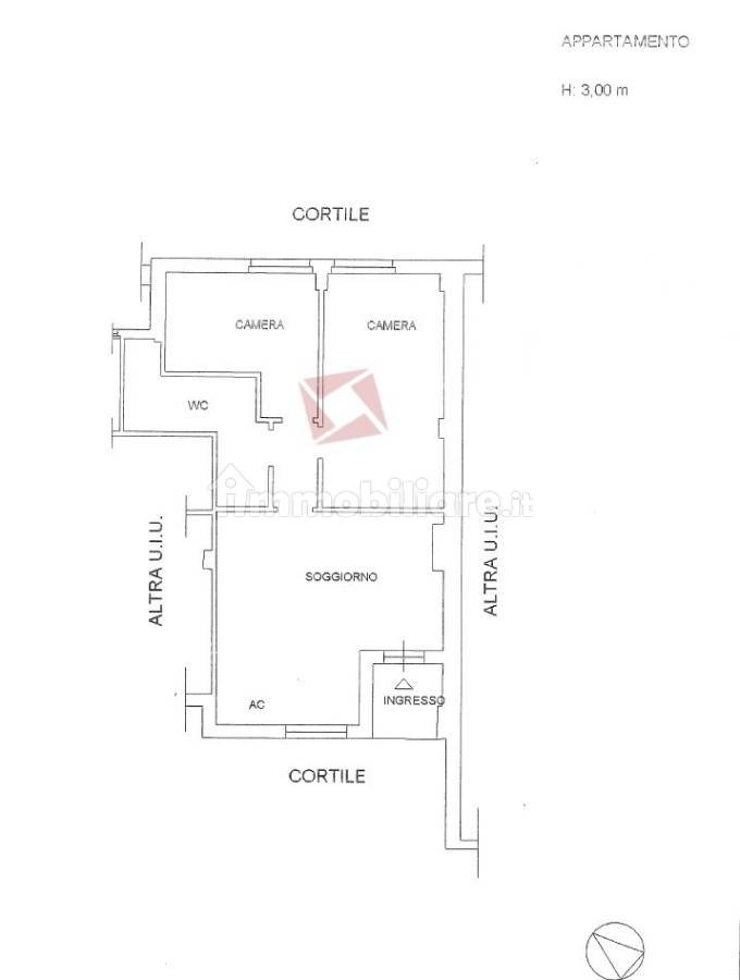
Appartamento Via dell'Archeologia, Torre Angela, Roma
📐
60 m²
🚪
3 locali
🚿
1 bagni
🛗
Ascensore
immobiliare.it ↗
▼ Mostra mappa
Alt ←
←
Precedente
Successivo
→
Alt →
Quanto costa questo immobile?
€
.000
Spazio
Indovina
↵
Sessione: 0 stime
Sessione: 0 stime