Report bug
Home
>
Lazio
>
RM
>
Roma
>
Termini, Repubblica
137 / 326
←
→
1 / 15
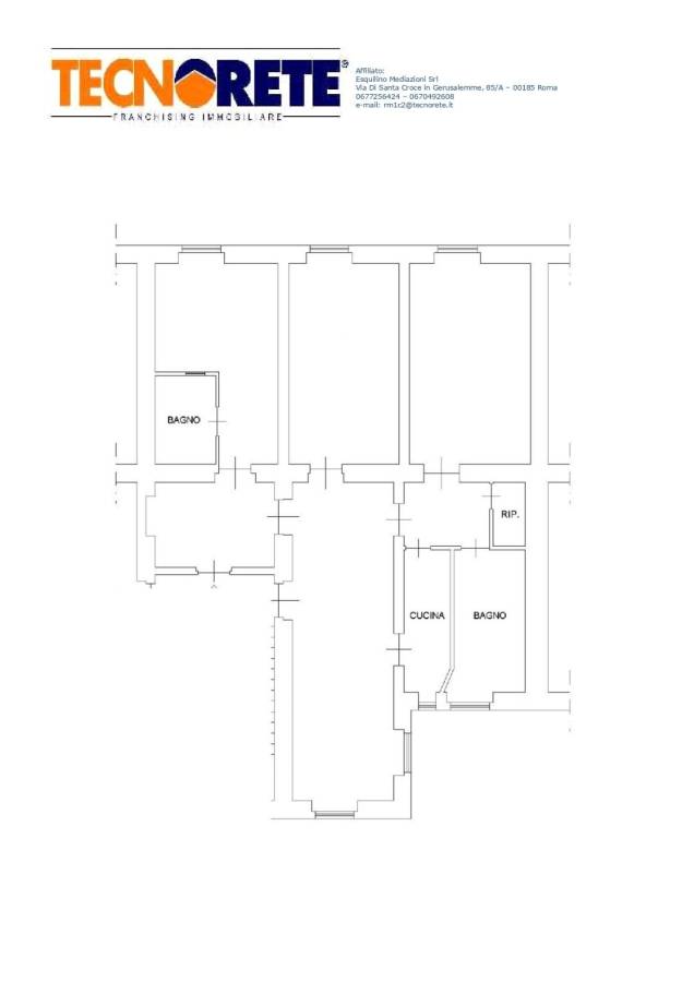
Appartamento Via Principe Amedeo, Esquilino, Roma
📐
137 m²
🚪
4 locali
🚿
2 bagni
🏢
Piano 5
🛗
Ascensore
immobiliare.it ↗
▼ Mostra mappa
Alt ←
←
Precedente
Successivo
→
Alt →
Quanto costa questo immobile?
€
.000
Spazio
Indovina
↵
Sessione: 0 stime
Sessione: 0 stime