Report bug
Home
>
Lazio
>
RM
>
Roma
>
Termini, Repubblica
135 / 326
←
→
1 / 40
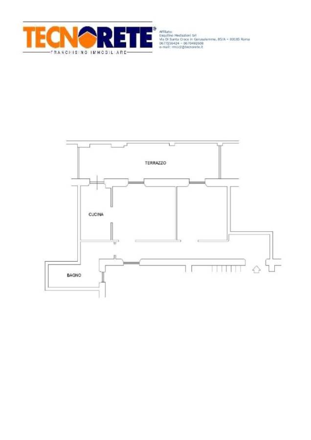
Attico - Mansarda Via di Porta Maggiore, Esquilino, Roma
📐
70 m²
🚪
2 locali
🚿
1 bagni
🏢
Piano 8
🛗
Ascensore
immobiliare.it ↗
▼ Mostra mappa
Alt ←
←
Precedente
Successivo
→
Alt →
Quanto costa questo immobile?
€
.000
Spazio
Indovina
↵
Sessione: 0 stime
Sessione: 0 stime