Report bug
Home
>
Lazio
>
RM
>
Roma
>
Re di Roma, San Giovanni
154 / 403
←
→
1 / 18
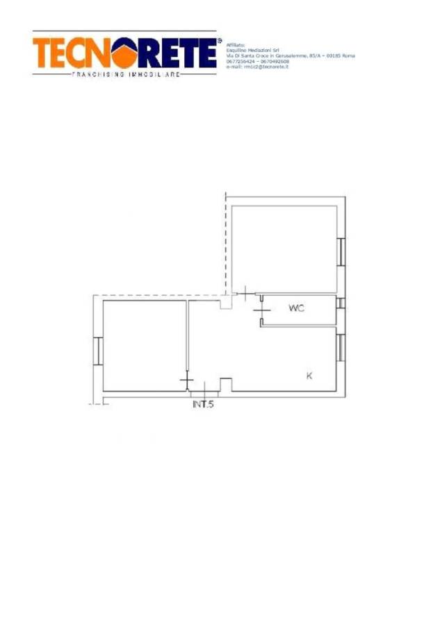
Appartamento Via Germano Sommeiller, San Giovanni, Roma
📐
75 m²
🚪
3 locali
🚿
1 bagni
🏢
Piano 3
🛗
Ascensore
immobiliare.it ↗
▼ Mostra mappa
Alt ←
←
Precedente
Successivo
→
Alt →
Quanto costa questo immobile?
€
.000
Spazio
Indovina
↵
Sessione: 0 stime
Sessione: 0 stime