Report bug
Home
>
Lazio
>
RM
>
Roma
>
Portuense Villa Bonelli
47 / 226
←
→
1 / 26
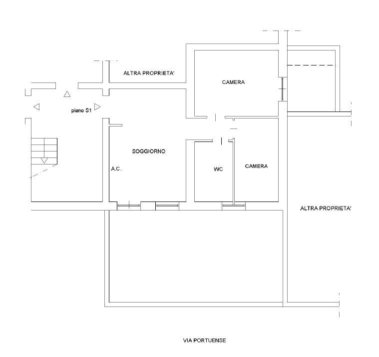
Appartamento Via Portuense, Portuense, Roma
📐
65 m²
🚪
3 locali
🚿
1 bagni
🛗
Ascensore
immobiliare.it ↗
▼ Mostra mappa
Alt ←
←
Precedente
Successivo
→
Alt →
Quanto costa questo immobile?
€
.000
Spazio
Indovina
↵
Sessione: 0 stime
Sessione: 0 stime