Report bug
Home
>
Lazio
>
RM
>
Roma
>
Parioli, Flaminio
>
Pinciano - Villa Ada
85 / 116
←
→
1 / 6
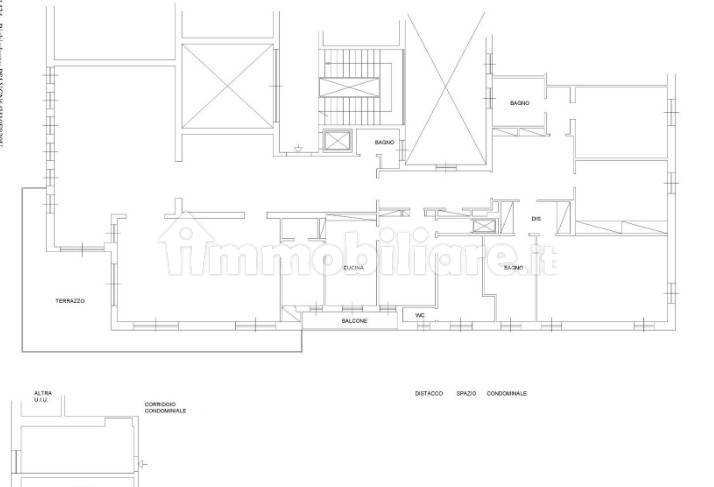
Appartamento Via Gaspare Spontini, 20A, Pinciano - Villa Ada, Roma
📐
307 m²
🚪
5+ locali
🚿
3+ bagni
🏢
Piano 3
🛗
Ascensore
immobiliare.it ↗
▼ Mostra mappa
Alt ←
←
Precedente
Successivo
→
Alt →
Quanto costa questo immobile?
€
.000
Spazio
Indovina
↵
Sessione: 0 stime
Sessione: 0 stime