Report bug
Home
>
Lazio
>
RM
>
Roma
>
Parioli, Flaminio
>
Pinciano - Villa Ada
105 / 116
←
→
1 / 9
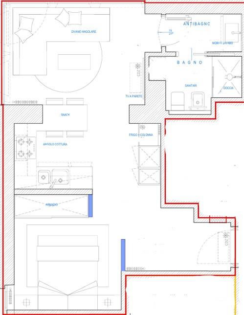
Appartamento Via Polonia, Pinciano - Villa Ada, Roma
📐
50 m²
🚪
2 locali
🚿
1 bagni
🏢
Piano 2
🛗
Ascensore
immobiliare.it ↗
▼ Mostra mappa
Alt ←
←
Precedente
Successivo
→
Alt →
Quanto costa questo immobile?
€
.000
Spazio
Indovina
↵
Sessione: 0 stime
Sessione: 0 stime