Report bug
Home
>
Lazio
>
RM
>
Roma
>
Prati, Borgo, Mazzini, Delle Vittorie, Degli Eroi
>
Piazzale degli Eroi
6 / 110
←
→
1 / 21
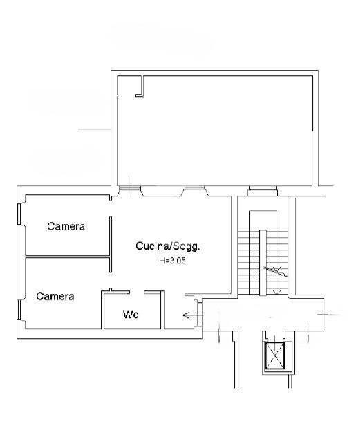
Appartamento Trilocale Via Giacomo Barzellotti, 4, Piazzale degli Eroi, Roma
📐
85 m²
🚪
3 locali
🚿
1 bagni
immobiliare.it ↗
▼ Mostra mappa
Alt ←
←
Precedente
Successivo
→
Alt →
Quanto costa questo immobile?
€
.000
Spazio
Indovina
↵
Sessione: 0 stime
Sessione: 0 stime