Report bug
Home
>
Lazio
>
RM
>
Roma
>
Lido di Ostia
>
Ostia Antica
16 / 103
←
→
1 / 21
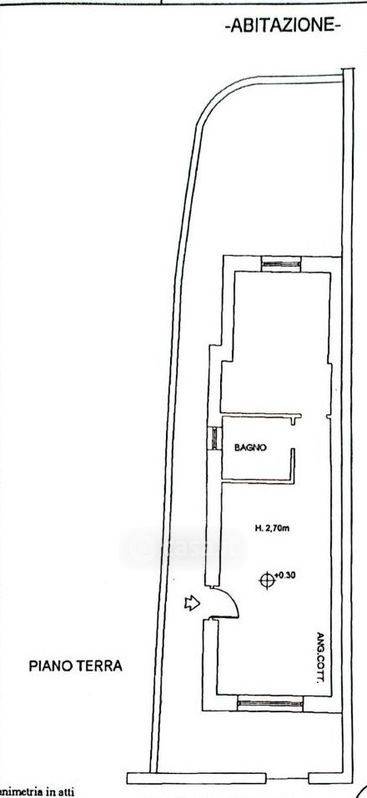
Villa Via Giulio Minervini, 175, Ostia Antica, Roma
📐
55 m²
🚪
2 locali
🚿
1 bagni
immobiliare.it ↗
▼ Mostra mappa
Alt ←
←
Precedente
Successivo
→
Alt →
Quanto costa questo immobile?
€
.000
Spazio
Indovina
↵
Sessione: 0 stime
Sessione: 0 stime