Report bug
Home
>
Lazio
>
RM
>
Roma
>
Olgiata Giustiniana
>
Osteria Nuova
6 / 36
←
→
1 / 22
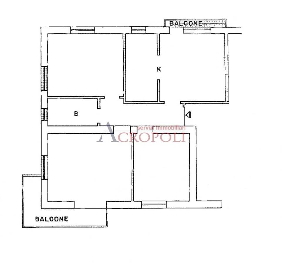
Appartamento via Arquà Petrarca, Osteria Nuova, Roma
📐
110 m²
🚪
4 locali
🚿
1 bagni
🏢
Piano 1
immobiliare.it ↗
▼ Mostra mappa
Alt ←
←
Precedente
Successivo
→
Alt →
Quanto costa questo immobile?
€
.000
Spazio
Indovina
↵
Sessione: 0 stime
Sessione: 0 stime