Report bug
Home
>
Lazio
>
RM
>
Roma
>
Olgiata Giustiniana
>
Osteria Nuova
19 / 36
←
→
1 / 23
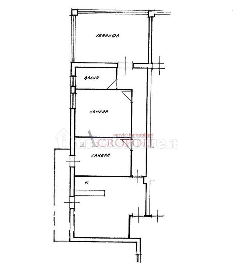
Appartamento via Borgomanero, Osteria Nuova, Roma
📐
107 m²
🚪
4 locali
🚿
1 bagni
🏢
Piano 1
immobiliare.it ↗
▼ Mostra mappa
Alt ←
←
Precedente
Successivo
→
Alt →
Quanto costa questo immobile?
€
.000
Spazio
Indovina
↵
Sessione: 0 stime
Sessione: 0 stime