Report bug
Home
>
Lazio
>
RM
>
Roma
>
Bologna, Policlinico
>
Nomentano
28 / 266
←
→
1 / 28
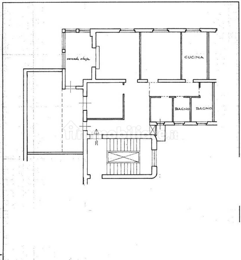
Attico - Mansarda Via di Sant'Angela Merici, Nomentano, Roma
📐
131 m²
🚪
4 locali
🚿
2 bagni
🏢
Piano 5
🛗
Ascensore
immobiliare.it ↗
▼ Mostra mappa
Alt ←
←
Precedente
Successivo
→
Alt →
Quanto costa questo immobile?
€
.000
Spazio
Indovina
↵
Sessione: 0 stime
Sessione: 0 stime