Report bug
Home
>
Lazio
>
RM
>
Roma
>
Monteverde, Gianicolense, Colli Portuensi, Casaletto
>
Monteverde
114 / 300
←
→
1 / 21
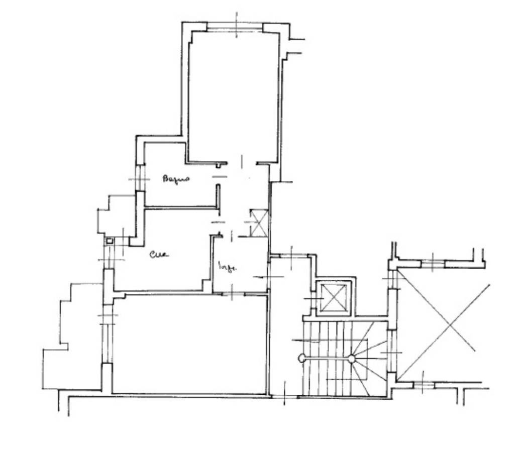
Appartamento Via Pio Foà, Monteverde, Roma
📐
71 m²
🚪
2 locali
🚿
1 bagni
🏢
Piano 3
🛗
Ascensore
immobiliare.it ↗
▼ Mostra mappa
Alt ←
←
Precedente
Successivo
→
Alt →
Quanto costa questo immobile?
€
.000
Spazio
Indovina
↵
Sessione: 0 stime
Sessione: 0 stime