Report bug
Home
>
Lazio
>
RM
>
Roma
>
Monteverde, Gianicolense, Colli Portuensi, Casaletto
>
Monteverde Vecchio
24 / 211
←
→
1 / 3
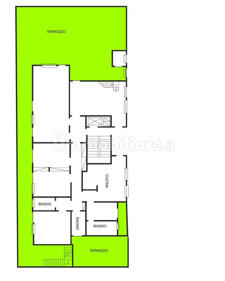
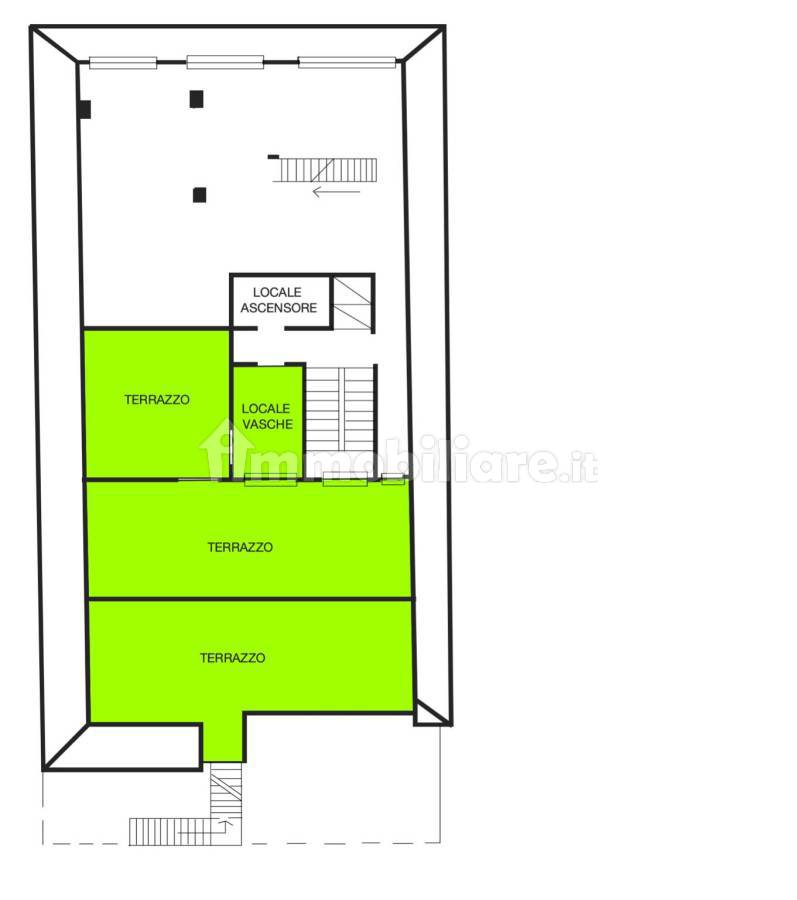
Attico - Mansarda Via di Donna Olimpia, 191, Monteverde Vecchio, Roma
📐
361 m²
🚪
5+ locali
🚿
3+ bagni
🏢
Piano 7
🛗
Ascensore
immobiliare.it ↗
▼ Mostra mappa
Alt ←
←
Precedente
Successivo
→
Alt →
Quanto costa questo immobile?
€
.000
Spazio
Indovina
↵
Sessione: 0 stime
Sessione: 0 stime