Report bug
Home
>
Lazio
>
RM
>
Roma
>
Prati, Borgo, Mazzini, Delle Vittorie, Degli Eroi
>
Mazzini - Delle Vittorie
103 / 212
←
→
1 / 24
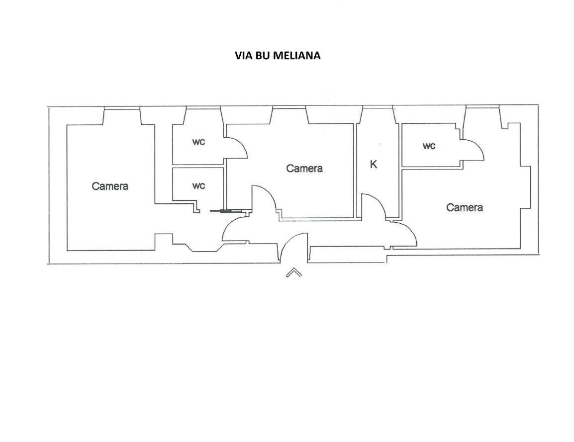
Appartamento Prati Via Bu Meliana, 12, Mazzini - Delle Vittorie, Roma
📐
76 m²
🚪
3 locali
🚿
3+ bagni
🏢
Piano 2
🛗
Ascensore
immobiliare.it ↗
▼ Mostra mappa
Alt ←
←
Precedente
Successivo
→
Alt →
Quanto costa questo immobile?
€
.000
Spazio
Indovina
↵
Sessione: 0 stime
Sessione: 0 stime