Report bug
Home
>
Lazio
>
RM
>
Roma
>
Prati, Borgo, Mazzini, Delle Vittorie, Degli Eroi
>
Mazzini - Delle Vittorie
163 / 212
←
→
1 / 28
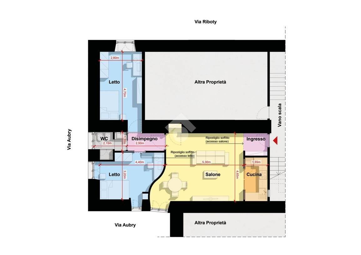
Appartamento Via Augusto Riboty, 3, Mazzini - Delle Vittorie, Roma
📐
93 m²
🚪
3 locali
🚿
1 bagni
🛗
Ascensore
immobiliare.it ↗
▼ Mostra mappa
Alt ←
←
Precedente
Successivo
→
Alt →
Quanto costa questo immobile?
€
.000
Spazio
Indovina
↵
Sessione: 0 stime
Sessione: 0 stime