Report bug
Home
>
Lazio
>
RM
>
Roma
>
Olgiata Giustiniana
>
La Giustiniana
171 / 174
←
→
1 / 2
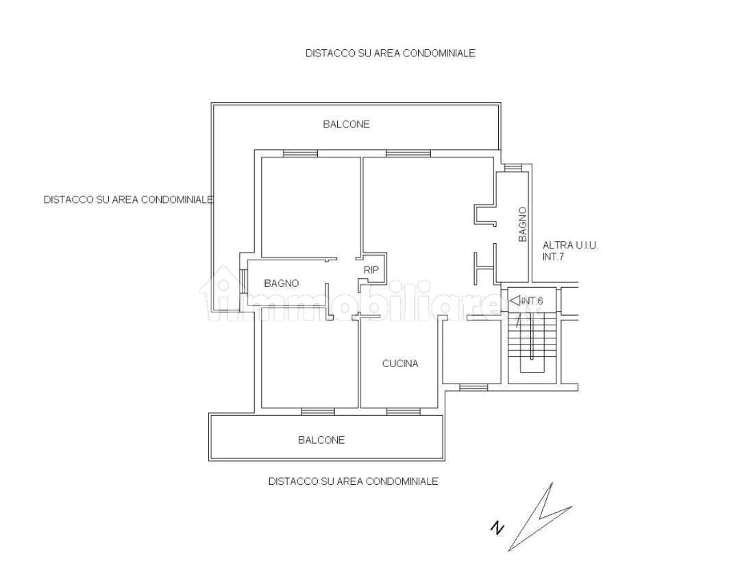
Appartamento Via Guido Guida, 16, La Giustiniana, Roma
📐
130 m²
🚪
4 locali
🚿
2 bagni
🏢
Piano 2
immobiliare.it ↗
▼ Mostra mappa
Alt ←
←
Precedente
Successivo
→
Alt →
Quanto costa questo immobile?
€
.000
Spazio
Indovina
↵
Sessione: 0 stime
Sessione: 0 stime