Report bug
Home
>
Lazio
>
RM
>
Roma
>
Cassia San Godenzo Grottarossa
>
Grottarossa - Saxa Rubra
6 / 146
←
→
1 / 20
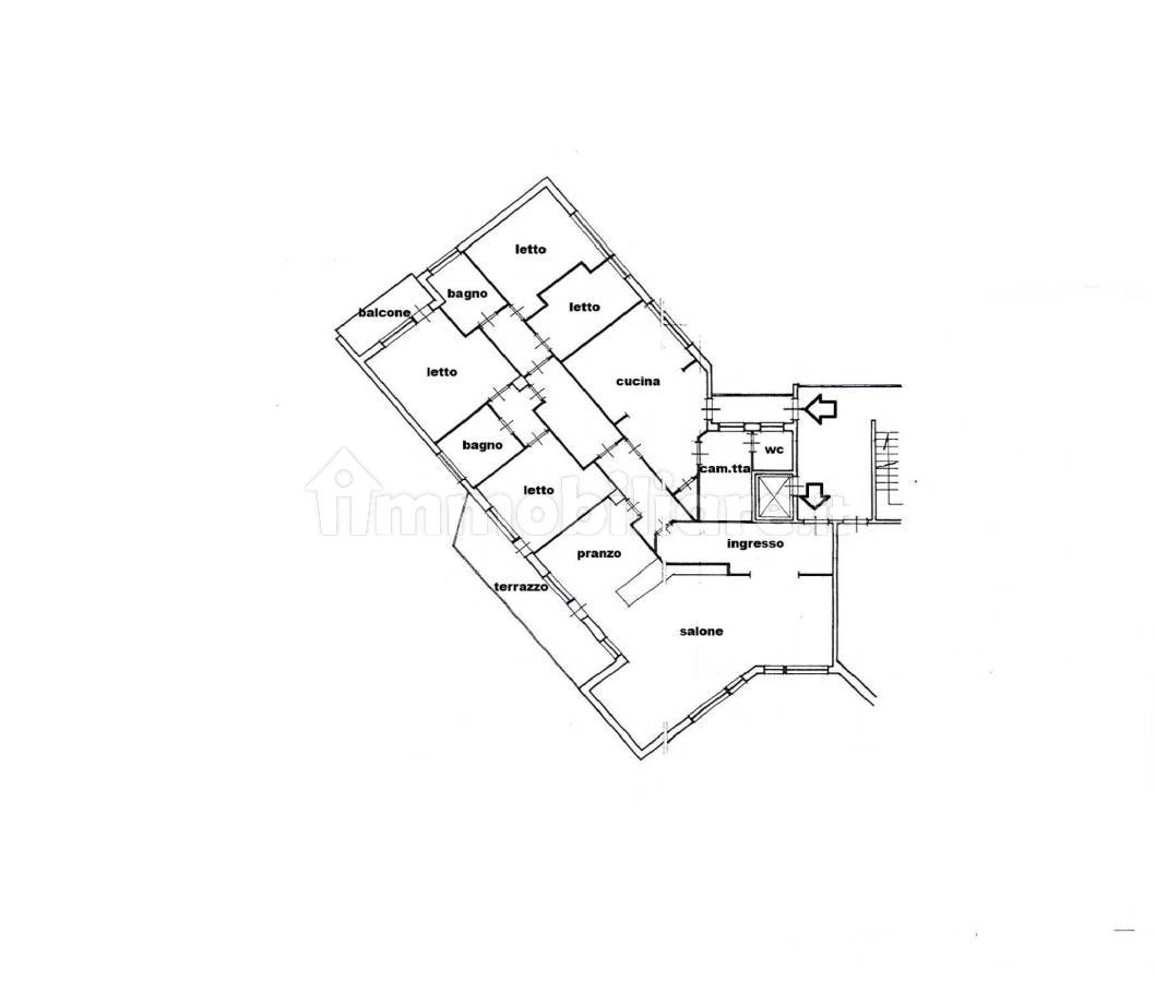
Appartamento Via Cassia , 1009, Grottarossa - Saxa Rubra, Roma
📐
261 m²
🚪
5+ locali
🚿
3+ bagni
🏢
Piano 2
🛗
Ascensore
immobiliare.it ↗
▼ Mostra mappa
Alt ←
←
Precedente
Successivo
→
Alt →
Quanto costa questo immobile?
€
.000
Spazio
Indovina
↵
Sessione: 0 stime
Sessione: 0 stime