Report bug
Home
>
Lazio
>
RM
>
Roma
>
Gregorio Vii Baldo Degli Ubaldi
>
Gregorio VII - Piccolomini
263 / 366
←
→
1 / 2
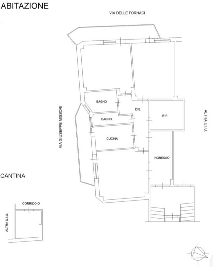
Appartamento Via Giuseppe Missori, Gregorio VII - Piccolomini, Roma
📐
115 m²
🚪
4 locali
🚿
2 bagni
🏢
Piano 4
🛗
Ascensore
immobiliare.it ↗
▼ Mostra mappa
Alt ←
←
Precedente
Successivo
→
Alt →
Quanto costa questo immobile?
€
.000
Spazio
Indovina
↵
Sessione: 0 stime
Sessione: 0 stime